G41F46衬氟隔膜阀
- 销售:
- 销售:
- 传真:
详情介绍
- 产品介绍
- 服务承诺
- 订货流程
衬氟隔膜阀是一种特殊形式的、具有截断功能的阀门,其吝惜闭件由钢质阀瓣与软质材料(橡胶和氟塑料复合)制成的隔膜组成,并将阀体内腔与阀盖内腔隔开,以达到截断管内介质之目的。
结构特点
1.复合隔膜阀将阀体下部内腔与阀盖内腔隔开,并与之形成直流通道,使隔膜上部的阀杆、阀瓣等内件与介质完全隔离,省去填料密封结构,介质的内漏和外漏可同时避免;
2.利用FEP(Teflon)氟塑料与全成橡胶复合而成的隔膜的带有Teflon氟塑料衬里层的阀门,可适于除“熔融碱金属、元素氟”外的各种强腐蚀性介质。
3.做为执行元件的膜片,由于频繁的启闭,易产生疲劳断裂,应视工况、介质的特性,进行定期更换。
4.氟塑料的防腐性能及推荐使用温度风“阀门及管路附件用氟塑料衬里性能表”。
基本型号
手动 | G41F3 | 直流式 | G45F3 |
G41F46 | G45F46 | ||
气动 | Q641F3 | 电动 | Q941F3 |
Q641F46 | Q941F46 |
主要零部件材料表
零件名称 | 灰铸铁 | 铸钢 | 不锈耐酸铸钢 | 超低不锈钢耐酸铸钢 | ||
Z | C | P | R | P | R | |
阀体/阀盖 | HT250 | WCB | CF8 | CF8M | CF3 | CF3M |
阀瓣/阀杆 | 35 | 1cr13 | 1Cr18Ni9Ti | 1Cr18Ni12Mo2Ti | 00cr18Ni10 | 00Cr17Ni14Mo2 |
衬里/阀座 | PTFE(F4)、PCTFE(F3)、FEP(F46)、PFA(可溶性F4) | |||||
隔膜 | FEP(F46)/CR(氯丁橡胶)、PFA(可溶性F4)/FPDM(乙丙橡胶) | |||||
支架 | WCB | CF8 | CF8 | |||
阀杆螺母 | ZCuAI10Fe3 | ZCuAI10Fe3 | ZCuAI10Fe3 | |||
紧固螺栓 | 35 | 1Cr17Ni2 | 1Cr18Ni9Ti | |||
螺母 | 45 | 0Cr18Ni9 | 0Cr18Ni9 | |||
手轮 | WCB | WCB | WCB | |||
技术规范
设计标准 | GB12239 |
结构长度 | JB1688/GB12221 |
法兰标准 | JB/T79-94 |
GB9113.1-26 | |
检验试验 | GB/T13927 |
驱动方式 | 手动、电动、气动、 |

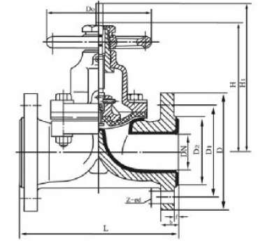
主要外形连接尺寸
公称通径 | 标准值 | 参考值 | ||||||||||
DN(mm) | NPS(inch) | L | D | D1 | D2 | f | b | Z-фd | d0 | H | H1 | WT(kg) |
PN0.6MPa / PN1.0MPa | ||||||||||||
15 | 1/2 | 125 | 95 | 65 | 45 | 2 | 14 | 4-ф14 | 100 | 105 | 110 | 3.5 |
20 | 3/4 | 135 | 105 | 75 | 55 | 2 | 16 | 4-ф14 | 100 | 115 | 125 | 4 |
25 | 1 | 145 | 115 | 85 | 65 | 2 | 16 | 4-ф14 | 120 | 120 | 135 | 5.5 |
32 | 11/4 | 160 | 135 | 100 | 78 | 2 | 18 | 4-ф18 | 120 | 125 | 150 | 8 |
40 | 11/2 | 180 | 145 | 110 | 85 | 3 | 18 | 4-ф18 | 140 | 135 | 175 | 11 |
50 | 2 | 210 | 160 | 125 | 100 | 3 | 20 | 4-ф18 | 140 | 155 | 195 | 14 |
65 | 21/2 | 250 | 180 | 145 | 120 | 3 | 20 | 4-ф18 | 200 | 170 | 200 | 23 |
80 | 3 | 300 | 195 | 160 | 135 | 3 | 22 | 4-ф18 | 200 | 200 | 255 | 29 |
100 | 4 | 350 | 215 | 180 | 155 | 3 | 22 | 8-ф18 | 280 | 270 | 325 | 46 |
125 | 5 | 400 | 245 | 210 | 185 | 3 | 24 | 8-ф18 | 320 | 335 | 405 | 70 |
150 | 6 | 460 | 280 | 240 | 210 | 3 | 24 | 8-ф23 | 320 | 370 | 450 | 95 |
200 | 8 | 570 | 335 | 295 | 265 | 3 | 26 | 8-ф23 | 400 | 480 | 600 | 170 |
250 | 10 | 680 | 390 | 350 | 320 | 3 | 28 | 12-ф23 | 500 | 545 | 620 | 270 |
300 | 12 | 790 | 435 | 395 | 362 | 4 | 24 | 12-ф23 | 500 | 585 | 680 | 320 |
PN1.6MPa | ||||||||||||
15 | 1/2 | 130 | 95 | 65 | 45 | 2 | 14 | 4-ф14 | 120 | 110 | 115 | 4 |
20 | 3/4 | 150 | 105 | 75 | 55 | 2 | 16 | 4-ф14 | 120 | 120 | 130 | 5 |
25 | 1 | 160 | 115 | 85 | 65 | 2 | 16 | 4-ф14 | 140 | 125 | 140 | 6 |
32 | 11/4 | 180 | 135 | 100 | 78 | 2 | 18 | 4-ф18 | 140 | 130 | 155 | 9 |
40 | 11/2 | 200 | 145 | 110 | 85 | 3 | 18 | 4-ф18 | 160 | 140 | 180 | 12 |
50 | 2 | 230 | 160 | 125 | 100 | 3 | 20 | 4-ф18 | 160 | 160 | 200 | 15 |
65 | 21/2 | 290 | 180 | 145 | 120 | 3 | 20 | 4-ф18 | 200 | 175 | 205 | 24 |
80 | 3 | 310 | 195 | 160 | 135 | 3 | 22 | 8-ф18 | 200 | 205 | 260 | 30 |
100 | 4 | 350 | 215 | 180 | 155 | 3 | 24 | 8-ф18 | 280 | 275 | 330 | 48 |
125 | 5 | 400 | 245 | 210 | 185 | 3 | 26 | 8-ф18 | 320 | 340 | 410 | 75 |
150 | 6 | 480 | 280 | 240 | 210 | 3 | 28 | 8-ф23 | 320 | 375 | 460 | 105 |
200 | 8 | 600 | 335 | 295 | 265 | 3 | 30 | 12-ф23 | 400 | 485 | 605 | 182 |
250 | 10 | 730 | 405 | 355 | 320 | 3 | 32 | 12-ф25 | 500 | 550 | 625 | 295 |
300 | 12 | 850 | 460 | 410 | 375 | 4 | 34 | 12-ф25 | 500 | 590 | 685 | 345 |
良好的品质、优良的服务 开云登陆入口-开云online(中国)为你创造更多价值!
“开云登陆入口-开云online(中国)”的期望,不断提升服务质量,精益求精,“真诚的服务”是“开云登陆入口-开云online(中国)”永恒的主题。“开云登陆入口-开云online(中国)”严格按照IS09001-2000 质量体系认证要求,质量严格把关, 责任到人,确保生产、销售、服务的健康运行。加强与用户沟通,竭诚为广大客户提供优良产品,至善至美服务。特此我厂做出以下承诺:
产品标准:
产品严格按照中国GB、HG 标准和美国API等标准设计、制造、验收。密封面硬度达到国家规定要求,宽度超过国家标准。
售前服务:
产品介绍,技术交流,非标产品设计,疑难解答。
售中服务:
守信合同,保证及时供货,随时保持与客户联系。 对特殊或复制的产品,我厂安排技术人员对用户进行产品使用、故障排除
售后服务:
1、“开云登陆入口-开云online(中国)”牌产品品质期为自出厂起12个月,实行“三包”服务(包退、包换、保修)。
2、产品在使用中我厂定期组织技术、质检人员进行访问,征询用户对产品质量、 使用状况、改进意见等方面的反馈, 以便进一步提高产品质量。
3、对用户投诉质量问题,快速作出反应,售后服务人员在24-36小时(省外48小时)赶赴现场。
4、对售后服务,要求用户填写服务后的质量反馈信息表,并作出鉴定意见,以便提高开云登陆入口-开云online(中国)的服务质量。
1、客户如对产品有特殊要求,须在订货合同中提供以下说明:
a、结构长度;
b、连接形式;
c、公称直径、全通径、缩径、管道尺寸;
d、运行介质及温度、压力范围;
e、试验、检验标准及其他要求
2、本厂可根据客户特定要求配置各类驱动装置。
3、如由客户提供确定的阀门类型和型号时,客户应正确说明其型号的含义和要求,在供需双方理解一致的条件下签订合同。
4、期货、订货的客户请先来电函详细告诉所需的阀门型号、规格、数量以及交货时间、地点,并按总的30%预定金或全额货款及时汇入我厂帐户,其余货款待发货前汇入,以便及时安排发货。
订单流程:
1、客户采购清单传真至,或来电咨询
2、收到客户采购清单,为客户提供阀门型号选型与报价(价格清单)。
3、具体商定:交货期、特殊要求等事宜。
订货须知:
1、客户如对产品有特殊要求,须在订货合同中提供以下说明:
|
|||||
|
|||||
2、本厂可根据客户特定要求配置各类驱动装置。
|
|||||
3、如由客户提供确定的阀门类型和型号时,客户应正确说明其型号的含义和要求,在供需双方理解一致的条件下签订合同。
|
|||||
4、期货、订货的客户请先来电函详细告诉所需的阀门型号、规格、数量以及交货时间、地点,并按总的30%预定金或全额货款及时汇入我厂账户, 其余货款待发货前汇入,以便及时安排发货。
|
售中服务:
守信合同,保证及时供货,随时保持与客户联系。
对特殊或复制的产品,我厂安排技术人员对用户进行产品使用、故障排除
售后服务:
1、“开云登陆入口-开云online(中国)”产品品质期为自出厂起12个月,实行“三包”服务(包退、包换、保修)。
2、产品在使用中我厂定期组织技术、质检人员进行访问,征询用户对产品质量、使用状况、改进意见等方面的反馈,
以便进一步提高产品质量。
3、对用户投诉质量问题,快速作出反应,售后服务人员在24-36小时(省外48小时)赶赴现场。
4、对售后服务,要求用户填写服务后的质量反馈信息表,并作出鉴定意见,以便提高“开云登陆入口-开云online(中国)”的服务质量。
声明 |
|